Аренда: Аренда торгового помещения в компактном ТЦ с отличной локацией, г. Логойск., г. Логойск,
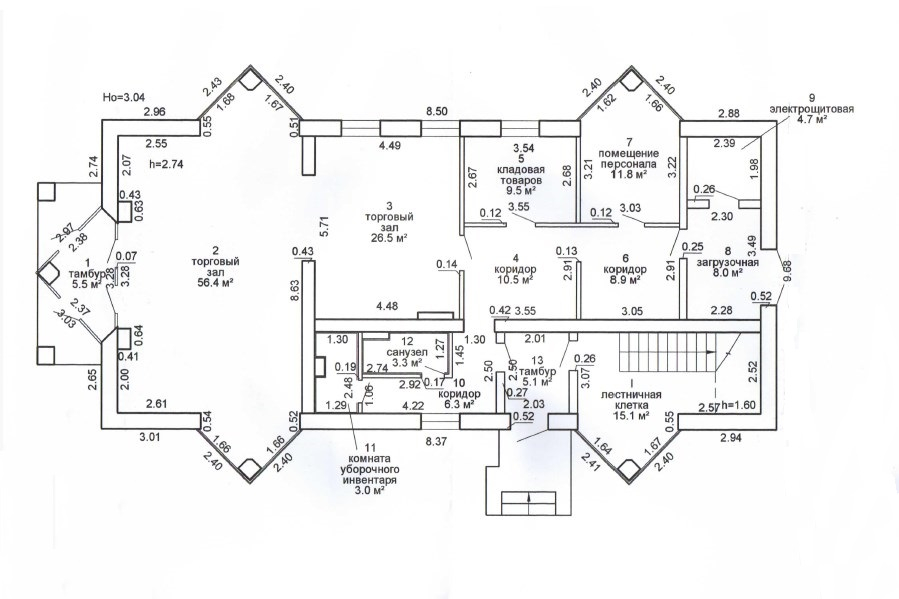
Помещение находится на первом этаже многофункционального здания, площадь – 216 кв.м. (торговый зал – 150 кв.м., склад с рампой – 66 кв.м.)
Сдаётся в долгосрочную аренду под магазин продовольственных или непродовольственных товаров.
Отличная локация на одной из центральных улиц Логойска и соседство с автовокзалом обеспечивает высокий трафик посетителей, в здании находятся пункты выдачи WB и OZON.
Здание оборудовано рампой для погрузки-выгрузки товара, имеет свою площадку для парковки авто, хорошие подъездные пути.
Электрические мощности – 20 кВт. Собственный санузел. Отопление, водоснабжение, канализация – центральные.
По всем вопросам смело звоните по телефонам в объявлении.
- Год постройки: 2019
- Площадь: 216 м2
- Этаж: 1
- Ремонт: да
- Интернет: да
- Парковка: да
- Режим работы здания: круглосуточно
- Питание: магазин
- Высота потолка: 2,74
- Мощность электричества: 20 кВт
- Вентиляция: есть
- Витринное остекление: да
- Первая линия объекта: да
- Вход в помещение: Отдельный
- Количество входов: 2
- Место для вывески: есть
- Регион: Минская область
- Район: Логойский
- Населенный пункт: г. Логойск
- Направление: Логойское
- Адрес: СОВЕТСКАЯ 1-Я 36А
- Точки притяжения посетителей возле объекта: Банковское отделение, Кафе, бар, ресторан, Магазин бытовой химии, Остановка общественного транспорта, Парк, водоем, Торговый центр
- Контактное лицо: Отдел аренды
- Телефон: +375 44 525-32-71
- E-mail: info@a-estate.by
- Телефон: +375 44 525-32-71
- Вид сделки: Предложение
- Цена: без НДС
- Форма собственности: Частная
- Тип договора: прямая аренда
- Стоимость коммунальных услуг
(за все помещение):В отопительный сезон: 1 руб.В неотопительный сезон: 1 руб.


в избранное
































